連接點(diǎn)及生根點(diǎn)大樣圖
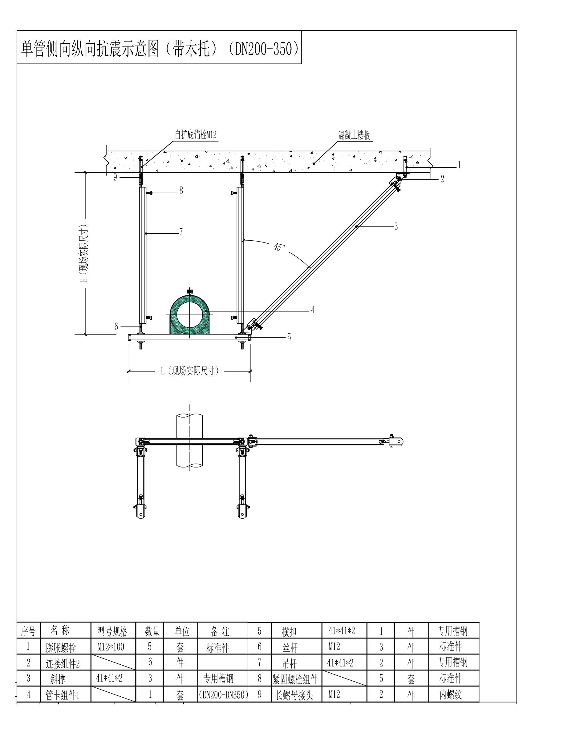
單管保溫側(cè)、縱向安裝示意圖
重型共架側(cè)向安裝示意圖
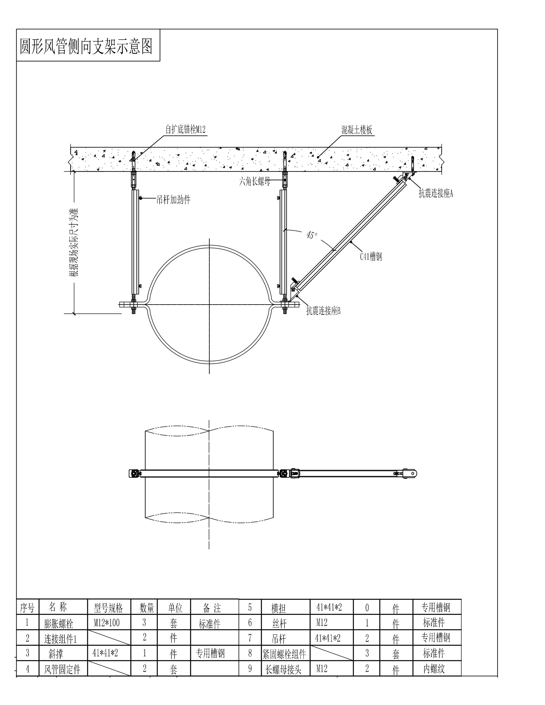
圓形風(fēng)管側(cè)向安裝示意圖
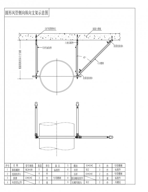
圓形風(fēng)管側(cè)·縱向安裝示意圖
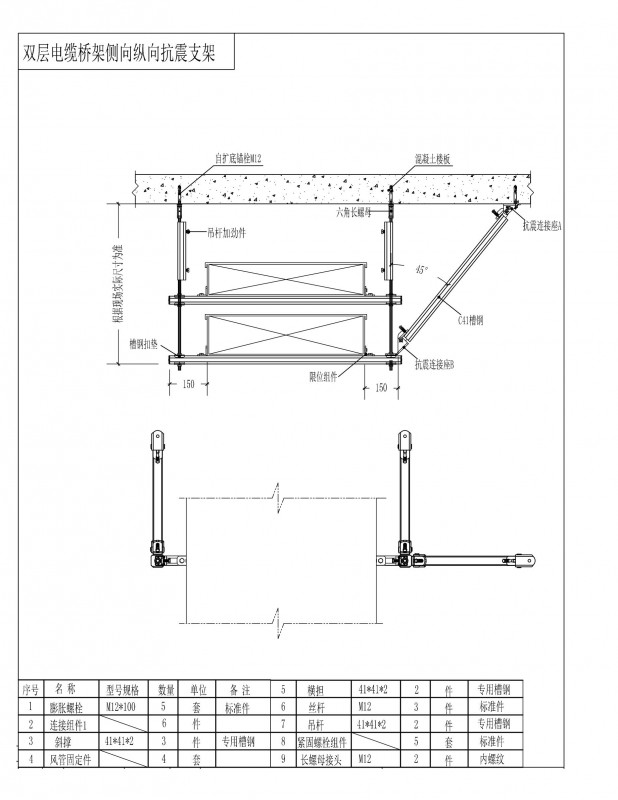
雙層橋架側(cè).縱向安裝示意圖
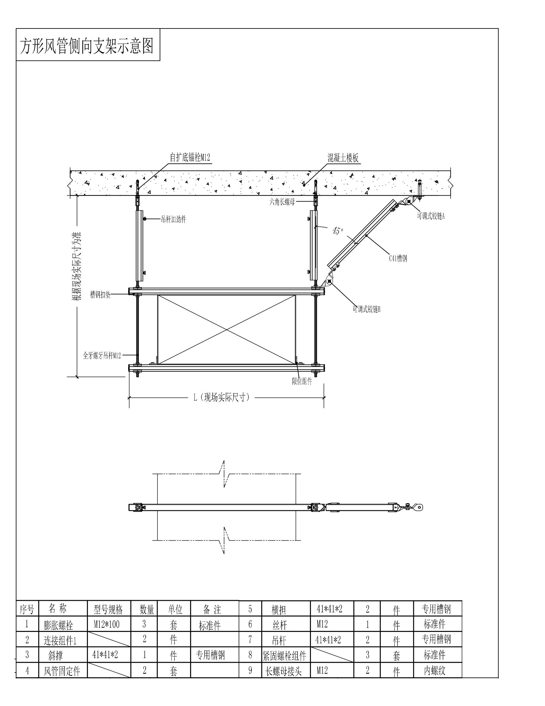
方形風(fēng)管側(cè)向安裝示意圖
方形風(fēng)管側(cè)、縱向安裝示意圖
聯(lián)系人:賈經(jīng)理
手機(jī):13366936563
郵箱:380903211@qq.com
地址: 北京海淀區(qū)馬甸南村一號院